咨詢熱線:0756-8300750 / 0756-8300758

心靈的栖居:重慶鐘書閣 / 唯想國際

浏覽量:3321作者:admin新聞日期:2019-04-10

a0.jpg

重慶,作為世界上最大的内陸山水之城,是一座有山有水,靈氣十足的城市。是古時文人墨客鐘情之地,亦是現在人人向往的地方。如今鐘書閣也正式融入這個充滿詩情畫意之地,坐落于楊家坪中迪廣場。

a1.jpg

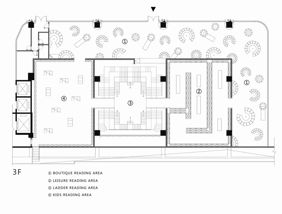
從3F扶梯上去首先映入眼簾的就是鐘書閣特色的文字幕牆,從正門進入大廳在深棕色為主色調的空間内放置了大大小小的“燈罩書架”,配上暖暖的燈光,你可以置身于燈罩内,可以在書桌前放下疲憊,享受奢侈的閱讀時光,感受被一個大大的“書房”眷顧的溫暖。

從燈造型書房走來就到了閱讀長廊,一道道門拱兩側整齊書架,在地面反射下形成一道道“穿越書海的隧道”,擺書臺仿若引領我們走向知識的盡頭。兒童館坐落在書房另一角,映入眼簾的則是五顔六色的兒童繪本區,突出了缤紛的主題,我們描繪了重慶獨有的山城景觀、建築、交通。讓小朋友在讀書的同時也可以領略到山城獨有的魅力。

從閱讀長廊和兒童館走出來就到了閱讀廳,整個空間被“山形階梯”層層環繞,整個天花被鏡面覆蓋,倒影出一個亦真亦幻的鏡像空間,拾步在階梯上,時而登高、時而遠眺,亦可以擡手間拿起一本好書,體會字裡行間帶給我們的思考。

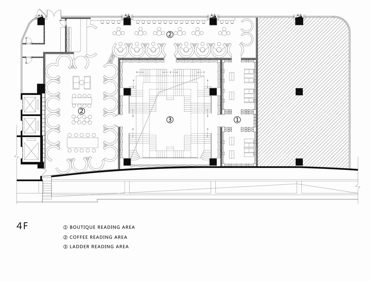
從“山形階梯”走到4F,就是休閑區咖啡閱讀區。在這裡端上一杯香茗伴着一抹淡淡的咖啡香,心緒如清泉般平靜。四周利用“燈罩書架”圍合成了一個個私密的卡座。在這裡人們可以在此與朋友相聚、享受休閑時光。休閑區咖啡閱讀區相連的就是精品閱讀區了。這裡你可以領略到各個領域先賢、大師的人生智慧,接受一場心靈的洗禮。

我們希望每一個人來到鐘書閣,不單單隻是找到好書、新書,還可以在這裡遇見許許多多志同道合的朋友。因為,這是一個人與書的交流空間,還是一個人與生活的交流空間,更是一個人與人的交流空間。

f1.jpg

設計圖紙:

調整大小 14_3FLAYOUT_.jpg

▲三層平面圖

調整大小 15_4FLAYOUT.jpg

▲四層平面圖

項目信息:

室内設計:唯想國際

地址:中迪廣場3樓,楊家坪區,重慶,中國

類别:室内設計

主創建築師:李想

設計團隊:劉歡

業主:上海鐘書實業有限公司

建築面積:1300.0 平方米

項目年份:2019

攝影師:邵峰

廠家:Autodesk, Dulux, TAIWANGLASS, Fórmica


來源丨http://www.archcollege.com/archcollege/2019/04/43998.html